2+kk Žebětín

  • 7,300,000 Kč
Doporučeno Na prodej
977/1, Pod kopcem, Žebětín, Brno, okres Brno-město, Jihomoravský kraj, 641 00, Česko
Doporučeno Na prodej
977/1, Pod kopcem, Žebětín, Brno, okres Brno-město, Jihomoravský kraj, 641 00, Česko
  • 7,300,000 Kč

Přehled

  • Byty
  • Typ nemovitosti
  • 1
  • Ložnice
  • 1
  • Koupelna
  • 64.5

Popis

Nabízíme k prodeji prostorný moderní byt v osobním vlastnictví.

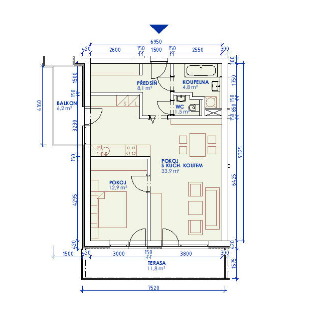
Byt se nachází v 1.podlaží menšího bytového domu a disponuje balkonem 6 m² a terasou 12 m² a společnou zahradou za domem.

V klidné lokalitě Brno-Žebětín

Vytápění tepelným čerpadlem-podlahové topení.

Lokalita:

Žebětín je městská část Brna s výbornou občanskou vybaveností.

V blízkosti bytu se nachází:

  • Supermarket Albert
  • Restaurace a kavárny
  • Dětská hřiště a sportoviště
  • Mateřské školy
  • Lékaři, zubaři a lékárna

Lokalita nabízí klidné bydlení s dobrou dostupností do centra Brna a zároveň blízkost přírody, což zajišťuje ideální podmínky pro rodinný život.

Dopravní dostupnost:

  • Centrum Brna je vzdáleno přibližně 10 km, což představuje asi 20 minut jízdy autem.
  • Nejbližší nájezd na dálnici D1 je vzdálen přibližně 5 km, což umožňuje rychlé spojení s dalšími částmi republiky.

Pro více informací nebo sjednání prohlídky nás neváhejte kontaktovat.

Plány podlaží

image

Popis:
Půdorys bytu včetně terasy a balkónu

Video

Podobné nabídky

Compare listings

Compare